納米微晶紅外線加熱是一種繼金屬管、石英管、鹵素管、陶瓷管紅外線等傳統發熱管之后,近兩年來剛興起的一種高科技加熱元件,其優異的性能愈來愈受國內外廣大客戶的歡迎。納米微晶紅外線發熱管(板)是利用納米技術和微晶材料(如硅化鋁與針晶體)構成的加熱管(板),通過特殊的納米材料吸收并轉化紅外線輻射為熱能,實現高效加熱的設備。這些納米材料具有優異的紅外線吸收和轉化能力,當外界紅外線輻射到材料表面時,能量被吸收并轉化為熱能,導致材料內部的分子振動加強,產生熱量。具有功率余量大、耐高溫、高熱能力強、使用壽命長、且功率可隨意調節等優點,被譽為是“本世紀最具競爭力的高科技材料”。它的出現在電熱領域掀起了一場新的革命,納米微晶加熱替代金屬發熱體將成為一種必然的趨勢。
0515-88230777
0515-88235777
鹽城邁克瑞機械有限公司自主研發的智能型全自動“納米微晶紅外線加熱谷物烘干機”是全新一代“高效、環保、節能”的谷物烘干設備,該烘干機采用納米微晶紅外線為加熱源的供熱技術。這種加熱方式(即類似于現在家用的光波爐)徹底解決了燃煤、燃油、燃氣、及生物質燃料的排放對環境污染問題。設備工作時不產生有害氣體,不消耗氧氣,真正實現零排放、零耗氧,綠色環保。
一、納米微晶紅外線加熱簡介
納米微晶紅外線加熱是一種繼金屬管、石英管、鹵素管、陶瓷管紅外線等傳統發熱管之后,近兩年來剛興起的一種高科技加熱元件,其優異的性能愈來愈受國內外廣大客戶的歡迎。納米微晶紅外線發熱管(板)是利用納米技術和微晶材料(如硅化鋁與針晶體)構成的加熱管(板),通過特殊的納米材料吸收并轉化紅外線輻射為熱能,實現高效加熱的設備。這些納米材料具有優異的紅外線吸收和轉化能力,當外界紅外線輻射到材料表面時,能量被吸收并轉化為熱能,導致材料內部的分子振動加強,產生熱量。具有功率余量大、耐高溫、高熱能力強、使用壽命長、且功率可隨意調節等優點,被譽為是“本世紀最具競爭力的高科技材料”。它的出現在電熱領域掀起了一場新的革命,納米微晶加熱替代金屬發熱體將成為一種必然的趨勢。
二、納米微晶紅外線加熱特點
1、高效加熱:納米微晶紅外發線加熱管(板)具有快速加熱的特點,升溫速率快,能夠在短時間內達到所需的溫度。
2、節能環保:在發熱過程中,納米微晶紅外發線不發光、改變了傳統紅外線可見光現象,不會消耗氧氣,也不會產生廢氣和污染物,非常環保。
3、遠紅外輻射:發出的遠紅外線用于人體保鍵,具有促進血液循環、舒緩神經、增加免疫力等功效,對人體健康有益。
4、穩定性佳:納米微晶紅外線發熱材料具有良好的穩定性和耐用性,發熱板(管)的使用壽命長。

三、納米微晶紅外線谷物烘干機工作原理
納米微晶紅外線加熱谷物烘干機工作原理:谷物烘干是一種由外至內、再由內至外的反復平衡排水過程,排水(烘干)必須經緩沖、烘干、再緩沖、再烘干----,多次循環才能在保證質量的前提下達到預期的烘干終點。
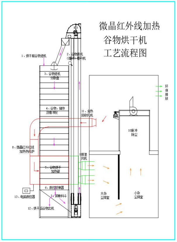
納米微晶紅外發線烘干的工作原理說明:(如下圖)

工作原理:
1、設置循環提升機。糧食烘干是一種反復平衡排水過程,提升機是保證循環烘干進行的主要設備。
2、設置進糧分散盤。烘干機進糧(按設計批量)至滿糧,進糧時,考慮水分過高容易結拱,進糧時需設計分散盤,將糧食均勻布入烘干機。同時,進糧至1/3滿,需要一邊進糧一邊循環,保證烘干前不結拱、順利流暢。
3、設置谷物烘干緩沖段,谷物烘干是一種由外至內、再由內至外的反復平衡排水過程,排水(烘干)必須經緩沖、烘干、再緩沖、再烘干----,多次循環才能在保證質量的前提下達到預期的烘干終點。
4、設置納米微晶紅外線加熱熱風爐。熱風爐是由N個納米微晶紅外線加熱管組成。熱風爐由人機界面觸控屏、PLC、調功儀控制,精準輸出所需熱風,為烘干提供高效、節能的熱風源。
5、設置余熱回收再利用裝置。納米微晶紅外線加熱烘干過程中有相當一部分余熱被排放,設置余熱回收裝置,是將脈沖除塵后的干凈余熱,經余熱回收風機送入納米微晶紅外線加熱器進風口,對進入加熱部空氣進行預加熱。這樣既能將余熱回收,又提高了烘干效率。
6、設置循環撥糧器。撥糧器是將谷物由上向下在關閉上方熱風的同時均勻的布置到下方料斗,并自流至循環提升機。
7、設置排濕風機。谷物烘干是將熱風穿過谷物經負壓排濕風機將谷物中的水分(經多次循環)帶走。
以上烘干過程經多次反復循環,達到所需的烘干指標。
納米微晶紅外發線烘干工藝流程圖:(如下圖)

四、產品產業作用
糧食烘干是直接影響到糧食豐產后能否豐收,是糧食產業鏈中關鍵一環。烘干過程中使用什么樣的熱源,既關系到糧食烘干成本,又關系到是否安全環保。
“納米微晶遠紅外線加熱用于糧食烘干”屬國內首創(專利技術),也是現代農業產業鏈中關鍵設備。
“納米微晶遠紅外線加熱谷物烘干機”既可以用于糧食烘干,又可以用于果蔬烘干,有先天的技術優勢,從根本上改變了:傳統電阻加熱的高能耗性、燃煤加熱高污染性、燃氣加熱供氣局限性、燃油加熱高成本性、“熱泵空氣能”加熱投資大、溫度低達不到實際烘干要求、電磁爐熱風爐控制模塊易損壞等問題。
五、產品優勢
1、投資少、高效節能、自動恒溫。
“納米微晶遠紅外線加熱谷物烘干機”既可以用于糧食烘干,又可以用于果蔬烘干,有先天的技術優勢,從根本上改變了:傳統電阻加熱的高能耗性、燃煤加熱高污染性、燃氣加熱供氣局限性、燃油加熱高成本性、“熱泵空氣能”加熱投資大、溫度低達不到實際烘干要求、電磁爐熱風爐控制模塊易損壞等問題。
空氣能熱泵(+輔助電熱管加熱)熱風爐輸入功率150kw, 每小時輸出熱量30(萬大卡),輸出熱風最大55℃,每批次烘干谷物時間大于30小時,單臺設備投資18萬元。
納米微晶遠紅外線加熱比空氣能熱泵熱風爐節約投資330%,每批次烘干谷物節約時間三分之一,節能30%;優其是:空氣能熱泵熱風爐使用了R22制冷劑,有泄漏污染,還要定期補充R22制冷劑,使用環境要求非常高,使用壽命短、維護成本更高。
不同谷物烘干熱風爐投資運行成本核算對比表
供熱方式 | 納米微晶紅外 熱風爐 | 電磁 熱風爐 | 空氣能熱泵 熱風爐 | 生物質 熱風爐 | 天然氣 熱風爐 |
烘干依據 | 設備:30噸批式循環烘干機,品種:稻谷,單批烘干數量:30噸,烘干前水分25%,烘干后水分15%,降水率10%。烘干后重量:27噸,每小時所需熱量:30(萬大卡)。烘干環境:秋季,室內溫度10度以下。 | ||||
燃料種類 | 電(130kw) | 電(150kw) | 電(150kw) | 生物質 | 天然氣 |
熱效率 | ≥96% | ≥85% | ≥85% | ≥70% | ≥85% |
燃料單價 | 0.49元/度 | 0.49元/度 | 0.49元/度 | 1.1元/kg | 4.2元/m3 |
消耗燃料/h | 110度 | 140度 | 130度 | 60kg | 30m3 |
熱風溫度 | >65℃ | <55℃ | <55℃ | >65℃ | >65℃ |
烘干時間 | 20小時 | 20小時 | 30小時 | 20小時 | 20小時 |
燃料費用 | 115度×20小時×0.49元/電度=1127元/27噸干糧=41.74元 | 140度×20小時×0.49元/電度=1372元/27噸干糧=50.81元 | 130度×30小時×0.49元/電度=1911元/27噸干糧=70.78元 | 60kg×20小時×1.1元/kg=1320元/27噸干糧=48.89元 | 30 m3×20小時×4.2元/ m3氣=2520元/27噸干糧=93.33元 |
人工費、電費 | 10.19元 | 10.19元 | 10.19元 | 19.44元 | 10.19元 |
總費用 | 51.93元 | 61.00元 | 80.97元 | 66.33元 | 103.52元 |
安全 | 安全 | 安全 | 安全 | 不安全 | 欠安全 |
污染 | 無污染 | 無污染 | 元污染 | 嚴重污染 | 無污染 |
設備投資 | 6萬元 | 9萬元 | 18萬元 | 6萬元 | 4萬元 |
維護成本 | 無 | 一般 | 特高 | 特高 | 一般 |
使用年限 | >10年 | >10年 | <5年 | <5年 | <8年 |
2、環保無污染。
傳統燃煤、天然氣、生物質等加熱設備是通過燃燒加熱空氣方式加熱,燃燒會產生廢氣排放,污染環境。還會消耗了大量不會再生的能源。使用納米微晶遠紅外線加熱,零排放,不產生廢氣,不污染空氣。
3、安全性高、使用壽命長。
傳統燃燒加溫方式會產生明火存有消防安全隱患(天然氣安全隱患更高)。產生廢氣存在人生安全和產品二次污染。使用納米微晶遠紅外線加熱,直接對谷物加熱,保質保鮮、零污染,沒有明火不存在消防安全隱患,對產品不存在二次污染。
納米微晶遠紅外線使用雙向右控硅具有軟啟動功能,在達到設置溫度后,僅僅調整微小功率確保溫度精準到±1度,不頻繁啟動,高效節能、安全可靠,可連續使用1萬小時以上,整機使用壽命10年以上。
4、長期運行穩定、維護費用低。
集成了全數字雙向可控硅控制器,有過流、過溫、開路等完備的保護功能。全自動運行,無需值守,安全穩定。
開機就工作無需預熱,升溫時間比空氣能熱泵、煤、天然氣、生物燃料、電磁爐等縮短了2/3。
加熱部分采用納米微晶遠紅外線加熱管,可承受500攝氏度以下高溫,主機設計壽命達10年以上,避免了其他加熱方式需要經常維護和定期更換易損件的弊端,納米微晶遠紅外加熱系統后期無維護費用。
六、技術參數
1、控制方法 :人機界面、PLC、全自動雙向可控硅智能數控
2、熱量大卡:30萬大卡/h
3、燃 料:電
4、額定功率:130kw
5、電壓/頻率:380V/50Hz
6、熱 效 率:≥96%
7、工作環境溫度:5℃—50℃
8、輸出熱風溫度:≥70℃

高效節能環保的納米微晶紅外加熱谷物烘干機——新能源新科技賦能新質生產力!



鹽城邁克瑞機械有限公司
地址:江蘇鹽城亭湖區環保科技城鳳翔路288號-五星科技園8號
聯系人:高宏祥
電話:18962007688 0086-515-88235777
傳真:0086-515-88236660
網址:http//www.izeng.cn
郵箱:jlali@ycjljx.com
郵碼:224005